Dépendance futur ( plan salon )
Plan de

Détails du plan
- Plan commencé le 21/08/2022 à 17:06 par alexdu44
- Modifié le 21/08/2022 à 17:06 par alexdu44
- Partage : Utilisation
Mots clés
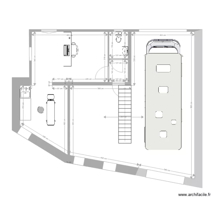
Liste des pièces
Aucune pièce n'a été créé sur ce plan.
Liste des objets
| Nom de l'objet | Nombre |
|---|---|
| Bureau 100 X 50 cm | 1 |
| Camping Car 4/5 pers. | 1 |
| Chaise de bureau | 1 |
| Escalier droit | 1 |
| Évier 1 bac | 1 |
| Meuble lavabo intégré | 1 |
| Plan de travail | 1 |
| Tabouret de bar | 1 |
| WC standard | 1 |
Lien vers ce plan
Lien pour partager le plan Dépendance futur ( plan salon )
Image du plan
Copier et coller le code ci dessous
Partagez ce plan
Vous aimez ce plan ?
Cliquez sur J'aime et gagnez des fonctionnalités