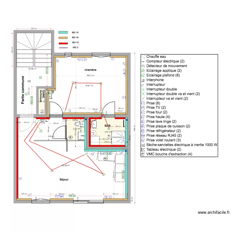
LOT A 1ER DEUX PIECES 15 AOUT 2020
Plan de

Détails du plan
- Plan commencé le 15/08/2020 à 07:09 par erdal93
- Modifié le 16/08/2020 à 22:49 par erdal93
- Partage : Utilisation
Mots clés
Liste des pièces
Aucune pièce n'a été créé sur ce plan.
Liste des objets
Lien vers ce plan
Lien pour partager le plan LOT A 1ER DEUX PIECES 15 AOUT 2020
Image du plan
Copier et coller le code ci dessous
Partagez ce plan
Vous aimez ce plan ?
Cliquez sur J'aime et gagnez des fonctionnalités