TS CS et SDB avant v1
Plan de

Détails du plan
- Plan commencé le 18/08/2019 à 17:52 par c.naitali
- Modifié le 18/08/2019 à 17:52 par c.naitali
- Partage : Utilisation
Mots clés
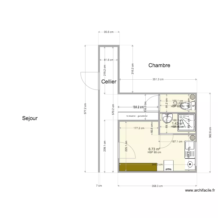
Liste des pièces
Aucune pièce n'a été créé sur ce plan.
Liste des objets
| Nom de l'objet | Nombre |
|---|---|
| Texte | 3 |
| Armoire - penderie 200 cm | 1 |
| Chaudière à Gaz | 1 |
| Évier 1 bac | 1 |
| Lavabo | 1 |
| Lave linge hublot | 1 |
| Receveur douche | 1 |
| Rectangle | 1 |
| WC standard | 1 |
Lien vers ce plan
Lien pour partager le plan TS CS et SDB avant v1
Image du plan
Copier et coller le code ci dessous
Partagez ce plan
Vous aimez ce plan ?
Cliquez sur J'aime et gagnez des fonctionnalités