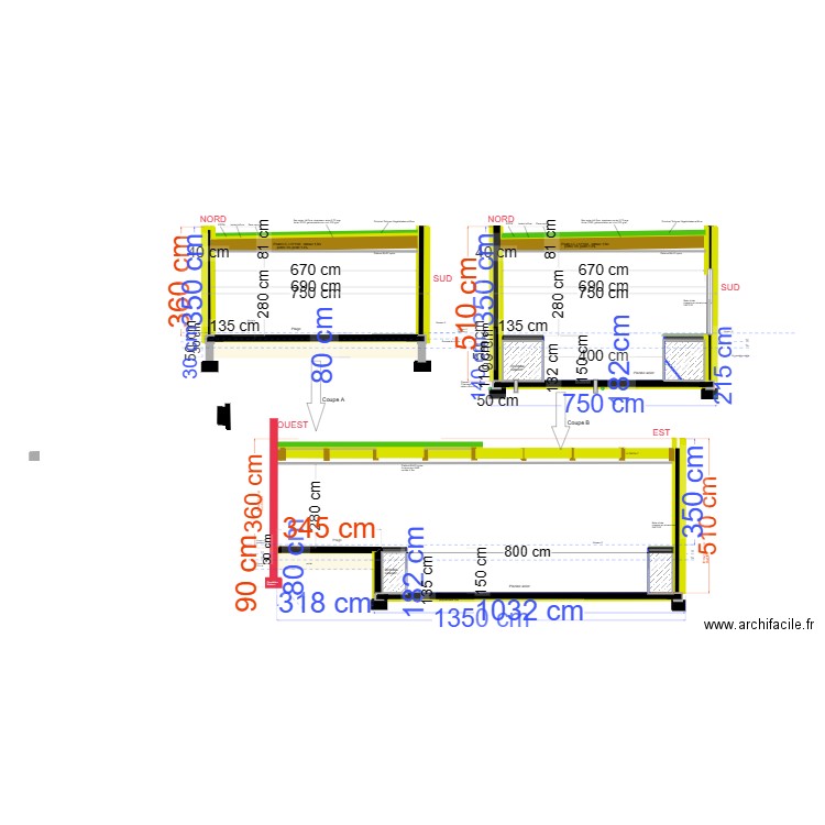
piscine coupe nord-sud béton acier v3
Plan de 0 pièce et 0 m2.

Détails du plan
- Plan commencé le 21/02/2023 à 19:49 par yl12345678
- Modifié le 27/02/2023 à 22:37 par yl12345678
- Partage : Lecture
Mots clés
Liste des pièces
Aucune pièce n'a été créé sur ce plan.
Lien vers ce plan
Lien pour partager le plan piscine coupe nord-sud béton acier v3
Image du plan
Copier et coller le code ci dessous
Partagez ce plan
Vous aimez ce plan ?
Cliquez sur J'aime et gagnez des fonctionnalités