avec cyrille
Plan de

Détails du plan
- Plan commencé le 14/03/2019 à 14:25 par severine pailleux
- Modifié le 14/03/2019 à 15:27 par severine pailleux
- Partage : Utilisation
Mots clés
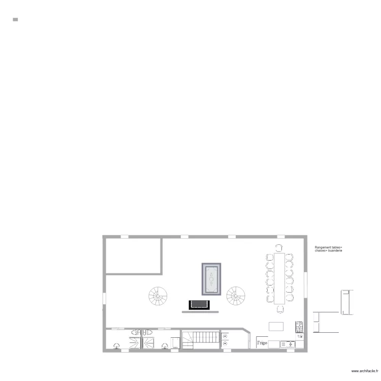
Liste des pièces
Aucune pièce n'a été créé sur ce plan.
Liste des objets
| Nom de l'objet | Nombre |
|---|---|
| Texte | 1 |
| Banquette clic-clac 3 places | 1 |
| Chaise | 14 |
| Cheminée | 1 |
| Escalier colimaçon | 2 |
| Escalier quart tournant | 1 |
| Évier 2 bacs avec meuble | 1 |
| Lavabo | 2 |
| Lave linge hublot | 2 |
| Lave vaisselle 12 couverts | 1 |
| Lit queen size | 1 |
| Parking | 1 |
| Piano de cuisson 5 foyers | 1 |
| Plan de travail | 4 |
| Receveur douche | 2 |
| Réfrigérateur | 1 |
| Table à langer | 1 |
| Tapis | 1 |
| WC standard | 2 |
Lien vers ce plan
Lien pour partager le plan avec cyrille
Image du plan
Copier et coller le code ci dessous
Partagez ce plan
Vous aimez ce plan ?
Cliquez sur J'aime et gagnez des fonctionnalités