david 1
Plan de

Détails du plan
- Plan commencé le 25/10/2021 à 20:27 par Nathalie Bisson
- Modifié le 25/10/2021 à 20:27 par Nathalie Bisson
- Partage : Utilisation
Mots clés
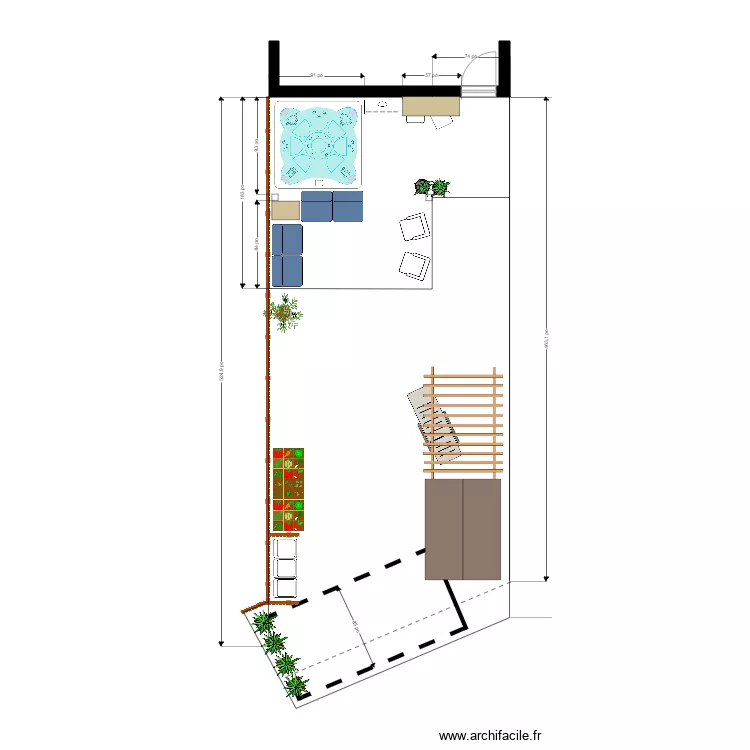
Liste des pièces
Aucune pièce n'a été créé sur ce plan.
Liste des objets
| Nom de l'objet | Nombre |
|---|---|
| Barrière de jardin | 4 |
| Carré potager | 2 |
| Carré potager | 1 |
| Chaise | 2 |
| Chaise haute bar | 2 |
| Fauteuil 1 place | 4 |
| Olivier en pot | 1 |
| Parking | 1 |
| Pergola | 1 |
| Plante | 6 |
| Plante | 2 |
| Plante | 4 |
| Poêle à bois rectangulaire | 1 |
| Rectangle | 4 |
| Spa | 1 |
| Toiture 2 pans | 1 |
| Transat gris | 1 |
Lien vers ce plan
Lien pour partager le plan david 1
Image du plan
Copier et coller le code ci dessous
Partagez ce plan
Vous aimez ce plan ?
Cliquez sur J'aime et gagnez des fonctionnalités