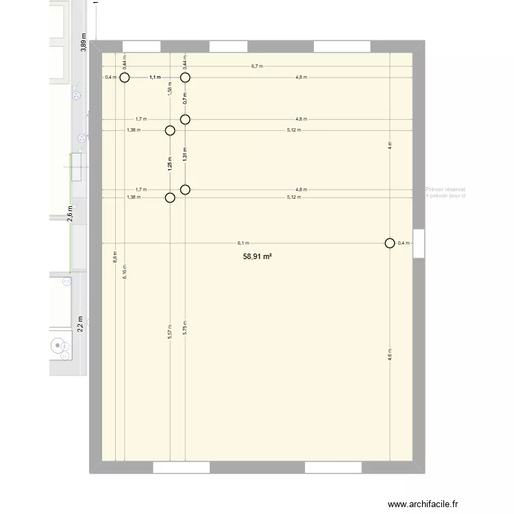
PLAN pour réservations dalles (basé sur mesures réelles sur place)
Plan de

Description
Plan avec mesures prises au réel
Détails du plan
- Plan commencé le 10/09/2025 à 08:10 par Lys63
- Modifié le 10/09/2025 à 08:51 par Lys63
- Partage : Utilisation
Mots clés
Liste des pièces
Aucune pièce n'a été créé sur ce plan.
Liste des objets
Lien vers ce plan
Lien pour partager le plan PLAN pour réservations dalles (basé sur mesures réelles sur place)
Image du plan
Copier et coller le code ci dessous
Partagez ce plan
Vous aimez ce plan ?
Cliquez sur J'aime et gagnez des fonctionnalités