Exercice Logement test2
Plan de

Description
Evaluation outil
Détails du plan
- Plan commencé le 17/10/2021 à 17:16 par Cyclotron
- Modifié le 17/10/2021 à 23:54 par Cyclotron
- Partage : Utilisation
Mots clés
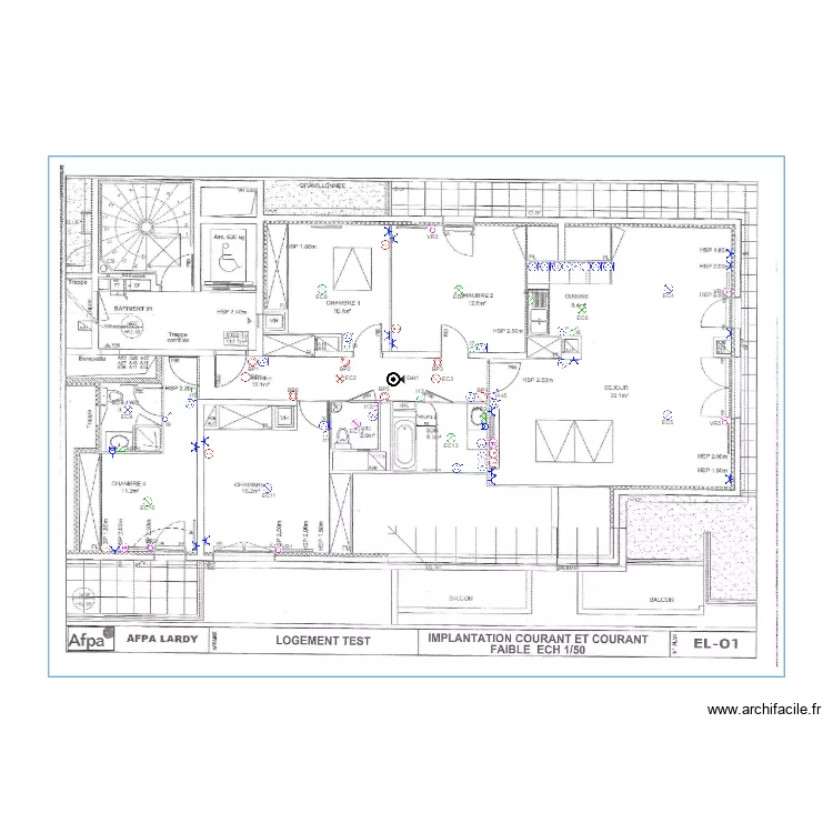
Liste des pièces
Aucune pièce n'a été créé sur ce plan.
Liste des objets
| Nom de l'objet | Nombre |
|---|---|
| Détecteur de fumée | 1 |
| Eclairage applique | 3 |
| Eclairage plafond | 13 |
| Interrupteur bipolaire | 9 |
| Interrupteur bouton poussoir | 6 |
| Interrupteur double | 5 |
| Prise | 17 |
| Prise Cumulus | 1 |
| Prise four | 1 |
| Prise haute | 14 |
| Prise lave linge | 1 |
| Prise lave vaisselle | 1 |
| Prise plaque de cuisson | 1 |
| Prise Rasoir | 2 |
| Prise réfrigérateur | 1 |
| Prise réseau RJ45 | 6 |
| Prise sèche linge | 1 |
| Prise téléphone | 1 |
| Prise TV | 2 |
Lien vers ce plan
Lien pour partager le plan Exercice Logement test2
Image du plan
Copier et coller le code ci dessous
Partagez ce plan
Vous aimez ce plan ?
Cliquez sur J'aime et gagnez des fonctionnalités