Plan JAOUEN
Plan de

Détails du plan
- Plan commencé le 13/09/2018 à 15:05 par Habitat Cornouaille
- Modifié le 24/09/2018 à 15:13 par Habitat Cornouaille
- Partage : Utilisation
Mots clés
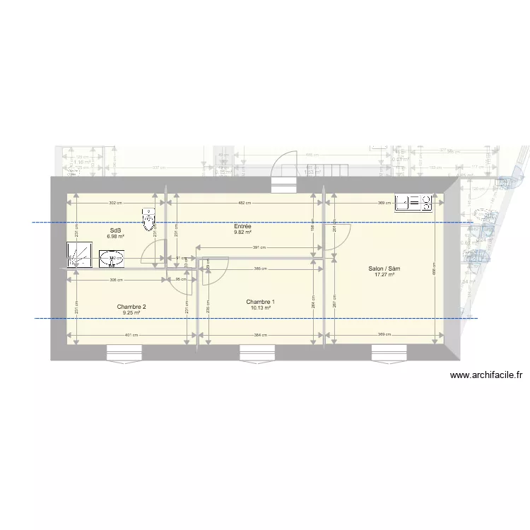
Liste des pièces
Aucune pièce n'a été créé sur ce plan.
Liste des objets
| Nom de l'objet | Nombre |
|---|---|
| Chauffe eau | 2 |
| Cheminée en pierre | 1 |
| Escalier quart tournant | 1 |
| Évier 1 bac avec meuble | 2 |
| Kitchenette électrique | 1 |
| Lave main | 2 |
| Meuble lavabo intégré | 1 |
| Receveur douche | 1 |
| WC standard | 3 |
Lien vers ce plan
Lien pour partager le plan Plan JAOUEN
Image du plan
Copier et coller le code ci dessous
Partagez ce plan
Vous aimez ce plan ?
Cliquez sur J'aime et gagnez des fonctionnalités