cusine perso
Plan de

Détails du plan
- Plan commencé le 28/08/2021 à 09:53 par darkwirbel
- Modifié le 28/08/2021 à 09:53 par darkwirbel
- Partage : Utilisation
Mots clés
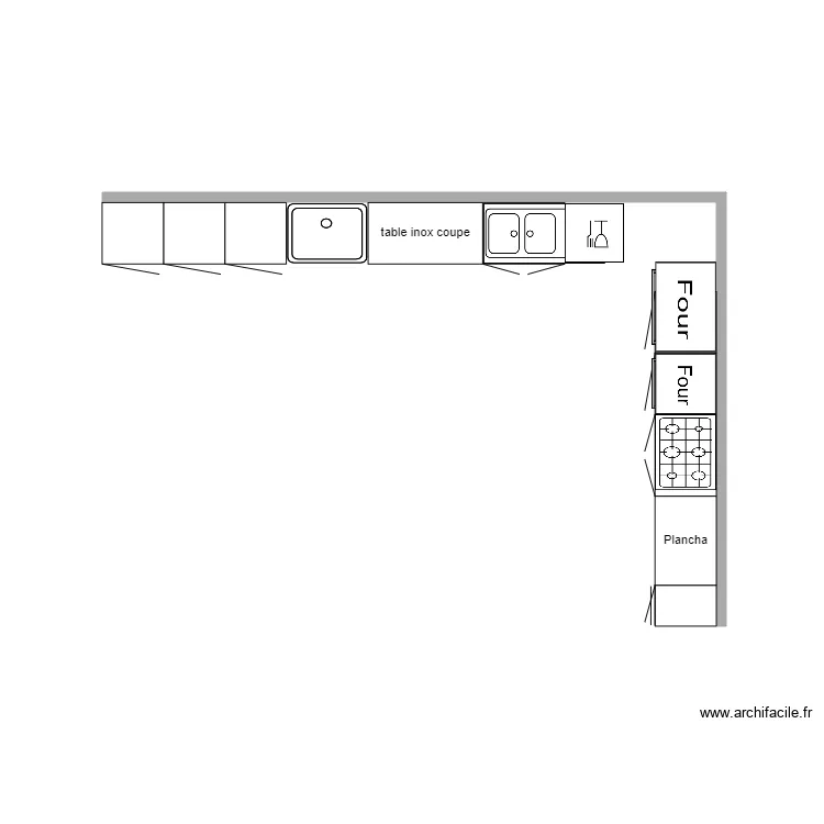
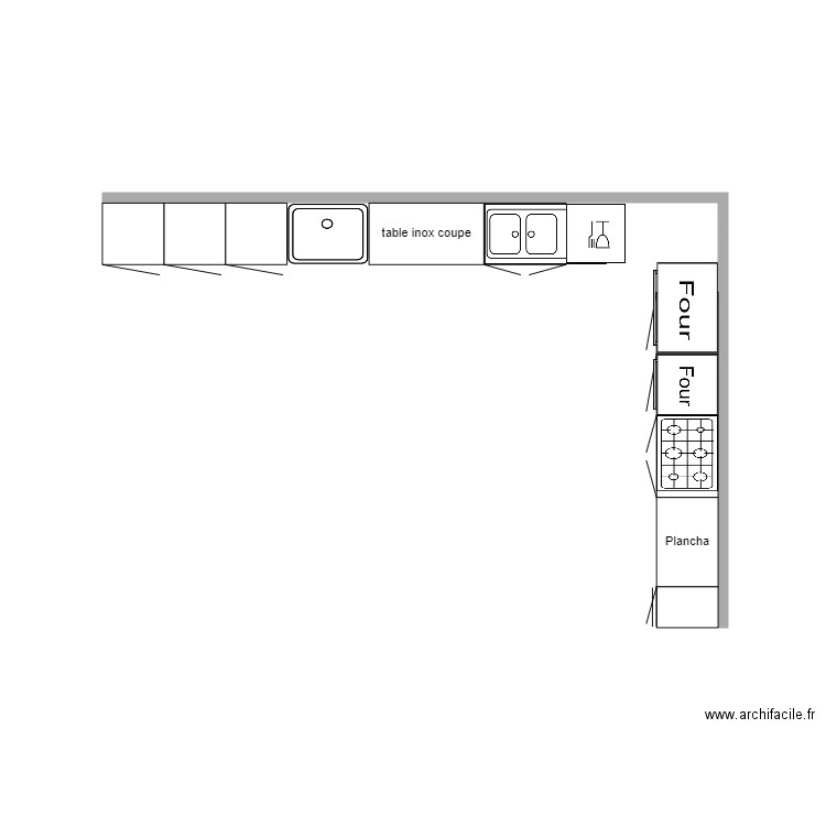
Liste des pièces
Aucune pièce n'a été créé sur ce plan.
Liste des objets
| Nom de l'objet | Nombre |
|---|---|
| Evier 1 vasque | 1 |
| Évier 2 bacs avec meuble | 1 |
| Four | 2 |
| Ilot central | 2 |
| Lave vaisselle 12 couverts | 1 |
| Meuble cuisine 1 porte | 5 |
| Meuble cuisine 1 porte et 1 tiroir | 1 |
| Meuble cuisine 2 portes | 2 |
| Piano de cuisson 6 foyers | 1 |
Lien vers ce plan
Lien pour partager le plan cusine perso
Image du plan
Copier et coller le code ci dessous
Partagez ce plan
Vous aimez ce plan ?
Cliquez sur J'aime et gagnez des fonctionnalités