HAAb SDB
Plan de

Détails du plan
- Plan commencé le 26/03/2025 à 10:15 par ESCS
- Modifié le 26/03/2025 à 10:15 par ESCS
- Partage : Utilisation
Mots clés
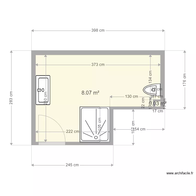
Liste des pièces
Aucune pièce n'a été créé sur ce plan.
Liste des objets
| Nom de l'objet | Nombre |
|---|---|
| Meuble 1 lavabo integré | 1 |
| Receveur douche | 1 |
| WC suspendu | 1 |
Lien vers ce plan
Lien pour partager le plan HAAb SDB
Image du plan
Copier et coller le code ci dessous
Partagez ce plan
Vous aimez ce plan ?
Cliquez sur J'aime et gagnez des fonctionnalités