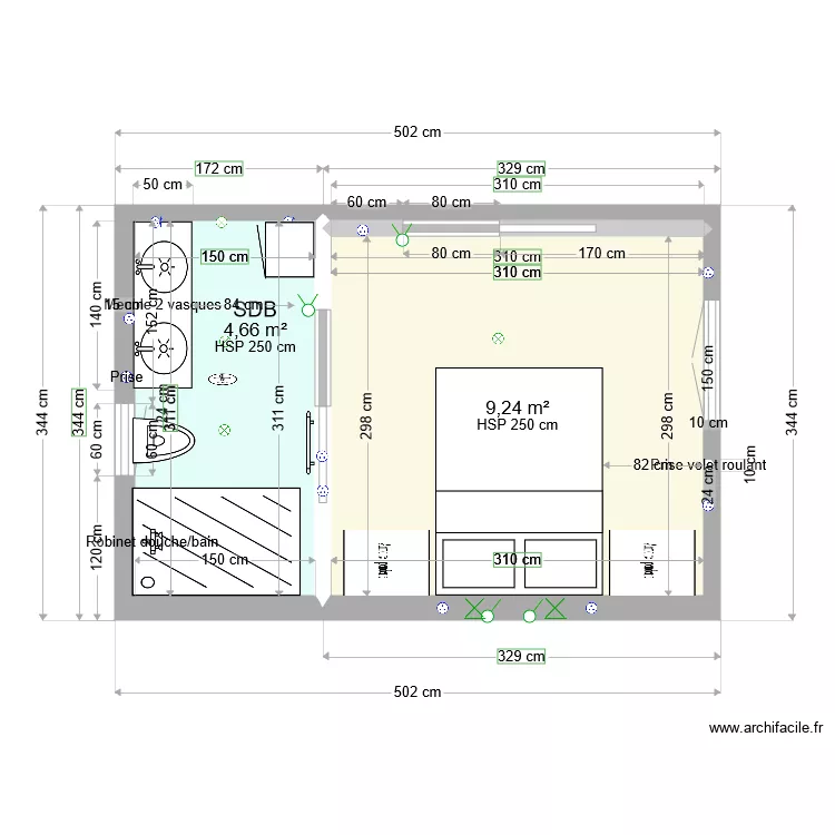
Plan suite parentale avec WC
Plan de

Description
Suite Parentale avec WC
Détails du plan
- Plan commencé le 23/09/2021 à 23:03 par elchaton
- Modifié le 23/09/2021 à 23:03 par elchaton
- Partage : Utilisation
Mots clés
Liste des pièces
Aucune pièce n'a été créé sur ce plan.
Liste des objets
Lien vers ce plan
Lien pour partager le plan Plan suite parentale avec WC
Image du plan
Copier et coller le code ci dessous
Partagez ce plan
Vous aimez ce plan ?
Cliquez sur J'aime et gagnez des fonctionnalités