SOTTA LOT 24
Plan de

Détails du plan
- Plan commencé le 19/05/2020 à 12:24 par titigo20
- Modifié le 19/05/2020 à 12:24 par titigo20
- Partage : Utilisation
Mots clés
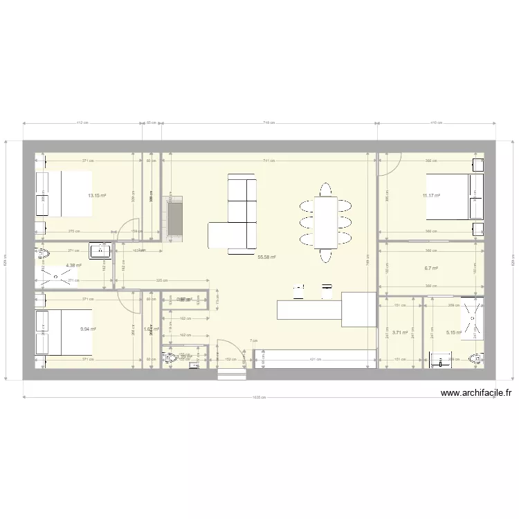
Liste des pièces
Aucune pièce n'a été créé sur ce plan.
Liste des objets
| Nom de l'objet | Nombre |
|---|---|
| Canapé méridienne droite | 1 |
| Chaise haute bar | 2 |
| Cheminée en pierre | 1 |
| Ilot central | 1 |
| Lave main | 1 |
| Lit queen size | 3 |
| Meuble 1 lavabo integré | 2 |
| Plan de travail | 2 |
| Receveur douche extra plat | 2 |
| Table 6 - 8 pers 180 x 80 cm | 1 |
| Table de chevet | 6 |
| WC suspendu | 3 |
Lien vers ce plan
Lien pour partager le plan SOTTA LOT 24
Image du plan
Copier et coller le code ci dessous
Partagez ce plan
Vous aimez ce plan ?
Cliquez sur J'aime et gagnez des fonctionnalités