Kertesz 17 ERIC version
Plan de

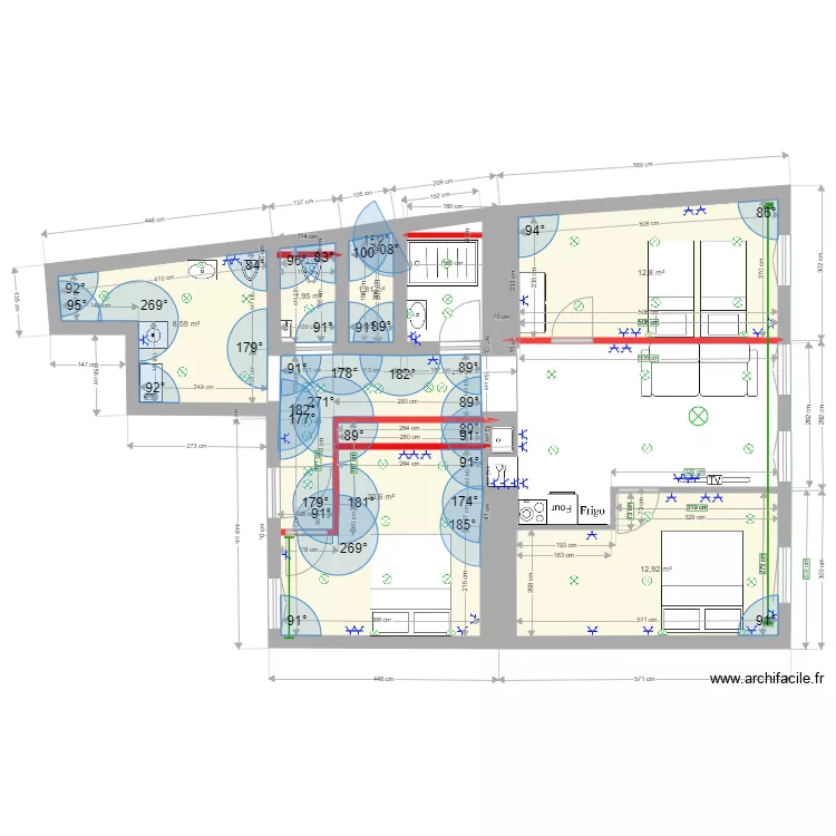
Description
KERTESZ 43
Détails du plan
- Plan commencé le 12/01/2022 à 12:51 par IIB
- Modifié le 30/01/2022 à 21:27 par IIB
- Partage : Utilisation
Mots clés
Liste des pièces
Aucune pièce n'a été créé sur ce plan.
Liste des objets
| Nom de l'objet | Nombre |
|---|---|
| Canapé 3 places | 1 |
| Chaudière à Gaz | 1 |
| Commode tiroirs 120 x 50 cm | 1 |
| Compteur gaz | 1 |
| Eclairage applique | 8 |
| Eclairage plafond | 44 |
| Eclairage Tube à fluorescence | 2 |
| Evier 1 vasque | 1 |
| Four | 1 |
| Lave linge hublot | 1 |
| Lave main | 1 |
| Lave vaisselle 12 couverts | 1 |
| Lit 1 pers | 2 |
| Lit queen size | 2 |
| Meuble lavabo intégré | 2 |
| Plaque induction 3 foyers | 1 |
| Prise | 41 |
| Receveur douche | 1 |
| Réfrigérateur | 1 |
| Téléviseur | 1 |
| WC suspendu | 2 |
Lien vers ce plan
Lien pour partager le plan Kertesz 17 ERIC version
Image du plan
Copier et coller le code ci dessous
Partagez ce plan
Vous aimez ce plan ?
Cliquez sur J'aime et gagnez des fonctionnalités