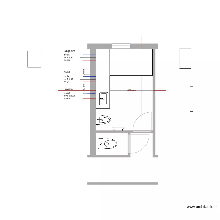
Salle de Bains Projet B6
Plan de

Détails du plan
- Plan commencé le 17/09/2019 à 21:21 par Chapeou
- Modifié le 23/10/2019 à 20:08 par Chapeou
- Partage : Utilisation
Mots clés
Liste des pièces
Aucune pièce n'a été créé sur ce plan.
Liste des objets
| Nom de l'objet | Nombre |
|---|---|
| Texte | 12 |
| Bidet | 1 |
| Etagère redimenssionnable | 1 |
| Meuble 1 lavabo integré | 1 |
| Sèche-serviettes électrique à inertie 1000 W | 1 |
| Table de bureau | 4 |
| WC standard | 1 |
Lien vers ce plan
Lien pour partager le plan Salle de Bains Projet B6
Image du plan
Copier et coller le code ci dessous
Partagez ce plan
Vous aimez ce plan ?
Cliquez sur J'aime et gagnez des fonctionnalités