PLAN MAISON CONTAINER
Plan de

Description
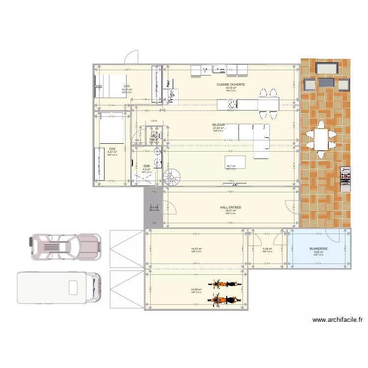
plan RDC Maison container Axel/Eden
RDC : 4 centenaires 40 Pieds
1ER : 2 centenaires 40 Pieds
Détails du plan
- Plan commencé le 14/05/2020 à 01:23 par asr bati pro
- Modifié le 15/05/2020 à 11:53 par asr bati pro
- Partage : Utilisation
Mots clés
Liste des pièces
Aucune pièce n'a été créé sur ce plan.
Liste des objets
Lien vers ce plan
Lien pour partager le plan PLAN MAISON CONTAINER
Image du plan
Copier et coller le code ci dessous
Partagez ce plan
Vous aimez ce plan ?
Cliquez sur J'aime et gagnez des fonctionnalités