Tyty & Yanis circuit prise
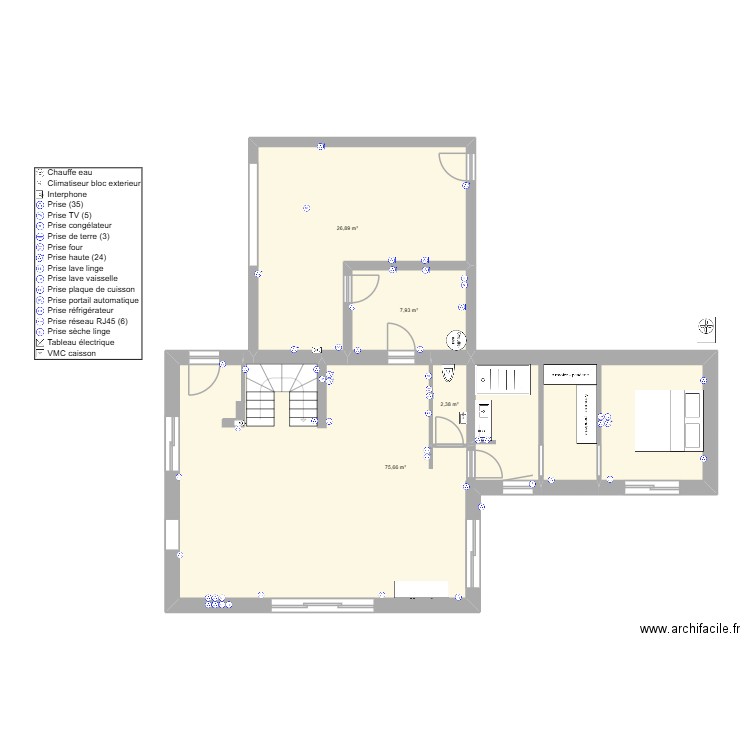
Plan de 11 et 171 m²

Détails du plan
- Plan commencé le 26/11/2025 à 00:29 par marine2244
- Modifié le 05/03/2026 à 13:23 par marine2244
- Partage : Utilisation
Mots clés
Liste des pièces
Liste des objets
| Nom de l'objet | Nombre |
|---|---|
| Légende | 1 |
| Armoire - penderie 150 cm | 2 |
| Baignoire d'angle | 1 |
| Buffet | 1 |
| Cabine douche | 1 |
| Chauffe eau | 1 |
| Climatiseur bloc exterieur | 1 |
| Escalier demi tournant | 1 |
| Interphone | 1 |
| Lave main | 1 |
| Lit double standard | 1 |
| Lit King Size | 1 |
| Lit queen size | 2 |
| Meuble 2 lavabos | 2 |
| Prise | 35 |
| Prise congélateur | 1 |
| Prise de terre | 3 |
| Prise four | 1 |
| Prise haute | 21 |
| Prise lave linge | 1 |
| Prise lave vaisselle | 1 |
| Prise plaque de cuisson | 1 |
| Prise portail automatique | 1 |
| Prise réfrigérateur | 1 |
| Prise réseau RJ45 | 6 |
| Prise sèche linge | 1 |
| Prise TV | 5 |
| Receveur douche | 1 |
| Tableau | 2 |
| Tableau électrique | 1 |
| VMC caisson | 1 |
| WC suspendu | 2 |
Lien vers ce plan
Lien pour partager le plan Tyty & Yanis circuit prise
Image du plan
Copier et coller le code ci dessous
Partagez ce plan
Vous aimez ce plan ?
Cliquez sur J'aime et gagnez des fonctionnalités
Plans de 11 pièces et de 160 à 180 m2
Voir tout les plans de 11 pièces et de 160 à 180 m2
Plans de 11 pièces
Voir tout les plans de 11 pièces
Plans de 160 à 180 m2
Voir tout les plans de 160 à 180 m2