MAISONNETTE
Plan de 1 et 27 m²

Description
RENOVATION ET AMENAGEMENT DEPENDANCE
Détails du plan
- Plan commencé le 16/10/2025 à 12:11 par chtilio
- Modifié le 23/03/2026 à 13:44 par chtilio
- Partage : Lecture
Mots clés
Liste des pièces
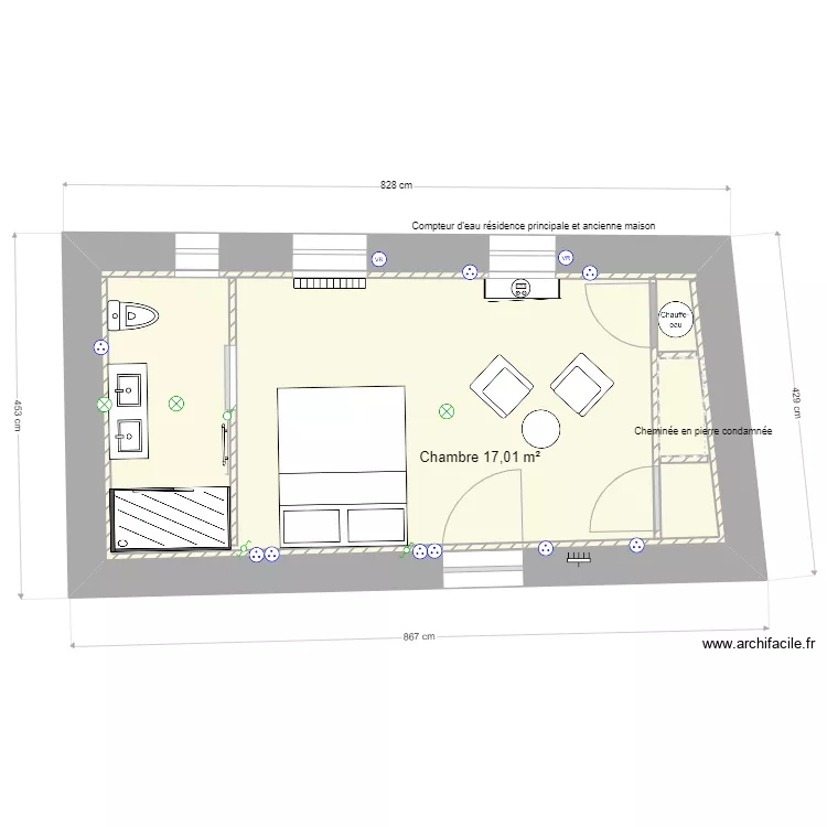
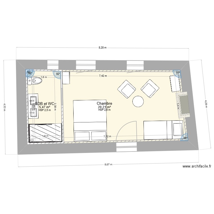
- Chambre 17,01 m²
Liste des objets
Lien vers ce plan
Lien pour partager le plan MAISONNETTE
Image du plan
Copier et coller le code ci dessous
Partagez ce plan
Vous aimez ce plan ?
Cliquez sur J'aime et gagnez des fonctionnalités
Plans de 1 pièce et de 20 à 30 m2
Voir tout les plans de 1 pièce et de 20 à 30 m2
Plans de 1 pièce
Voir tout les plans de 1 pièce
Plans de 20 à 30 m2
Voir tout les plans de 20 à 30 m2