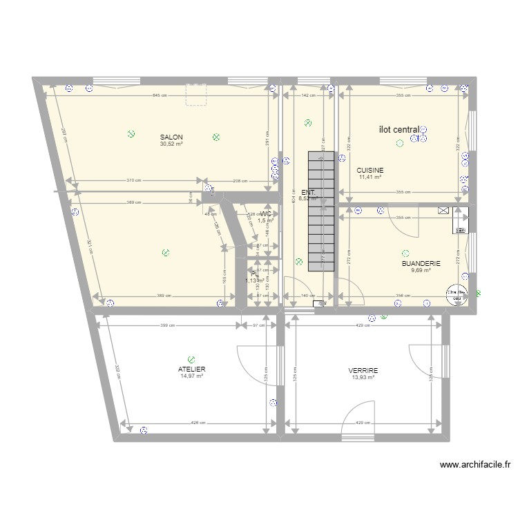
plan elec
Plan de 0 pièce et 0 m2.

Détails du plan
- Plan commencé le 13/10/2022 à 20:36 par Jostreet675
- Modifié le 13/10/2022 à 20:36 par Jostreet675
- Partage : Utilisation
Mots clés
Liste des pièces
Aucune pièce n'a été créé sur ce plan.
Liste des objets
| Nom de l'objet | Nombre |
|---|---|
| Texte | 2 |
| Chaudière à Gaz | 2 |
| Chauffe eau | 2 |
| Eclairage applique | 2 |
| Eclairage plafond | 8 |
| Escalier droit | 1 |
| Interphone | 1 |
| Poêle à granulés rond | 1 |
| Prise | 14 |
| Prise four | 1 |
| Prise haute | 3 |
| Prise lave linge | 1 |
| Prise lave vaisselle | 1 |
| Prise plaque de cuisson | 1 |
| Prise réfrigérateur | 2 |
| Prise réseau RJ45 | 1 |
| Prise sèche linge | 1 |
| Prise volet roulant | 6 |
| Tableau électrique | 1 |
Lien vers ce plan
Lien pour partager le plan plan elec
Image du plan
Copier et coller le code ci dessous
Partagez ce plan
Vous aimez ce plan ?
Cliquez sur J'aime et gagnez des fonctionnalités