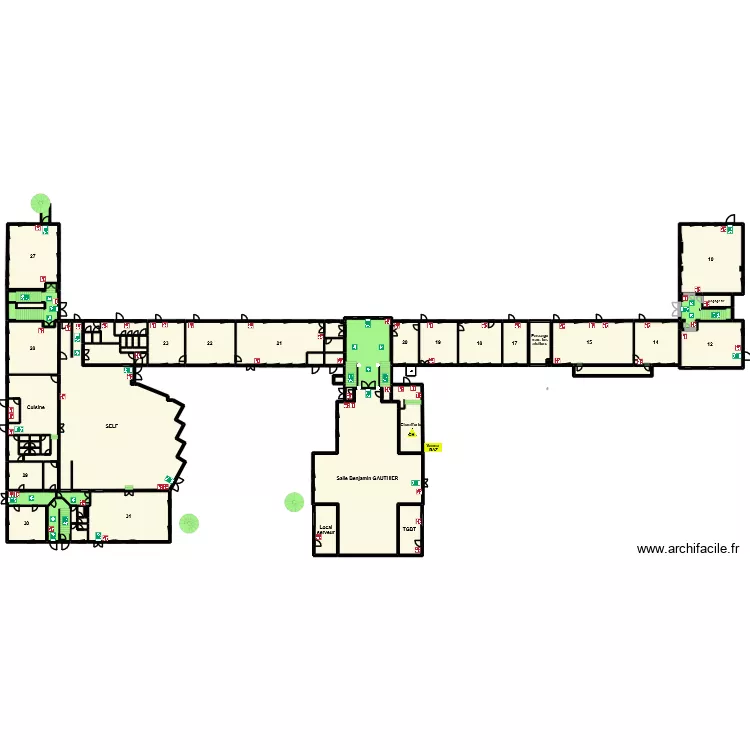
Plan RDC
Plan de

Description
PLan d'évacuation Rez-de-chaussée LP
Détails du plan
- Plan commencé le 02/04/2021 à 16:21 par Leseb58
- Modifié le 02/10/2025 à 17:11 par Leseb58
- Partage : Utilisation
Mots clés
Liste des pièces
Aucune pièce n'a été créé sur ce plan.
Liste des objets
| Nom de l'objet | Nombre |
|---|---|
| Texte | 26 |
| Alarme incendie | 39 |
| Direction à suivre | 6 |
| Direction à suivre | 5 |
| Elévateur personnes mobilité réduite | 1 |
| Escalier colimaçon | 3 |
| Escalier droit | 12 |
| Extincteur | 19 |
| Issue et sortie de secours | 11 |
| Issue et sortie de secours | 1 |
| Issue et sortie de secours | 4 |
| Issue et sortie de secours | 4 |
Lien vers ce plan
Lien pour partager le plan Plan RDC
Image du plan
Copier et coller le code ci dessous
Partagez ce plan
Vous aimez ce plan ?
Cliquez sur J'aime et gagnez des fonctionnalités