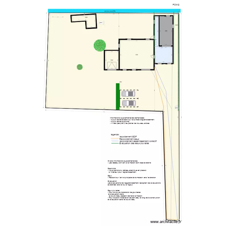
plan masse apres travaux PCMI2
Plan de

Détails du plan
- Plan commencé le 01/11/2018 à 21:37 par elo peuvrier
- Modifié le 17/08/2021 à 15:25 par elo peuvrier
- Partage : Utilisation
Mots clés
Liste des pièces
Aucune pièce n'a été créé sur ce plan.
Liste des objets
| Nom de l'objet | Nombre |
|---|---|
| Texte | 9 |
| Arbre fruitier - Cerisier | 1 |
| Arbre très grand | 1 |
| Cercle | 3 |
| Chevron | 2 |
| Haie | 1 |
| Parking | 1 |
| Piscine couloir de nage | 1 |
| Voiture citadine | 2 |
Lien vers ce plan
Lien pour partager le plan plan masse apres travaux PCMI2
Image du plan
Copier et coller le code ci dessous
Partagez ce plan
Vous aimez ce plan ?
Cliquez sur J'aime et gagnez des fonctionnalités