Chanoisy Projet Travaux
Plan de

Détails du plan
- Plan commencé le 26/07/2022 à 13:00 par Paris75
- Modifié le 26/07/2022 à 17:02 par Paris75
- Partage : Lecture
Mots clés
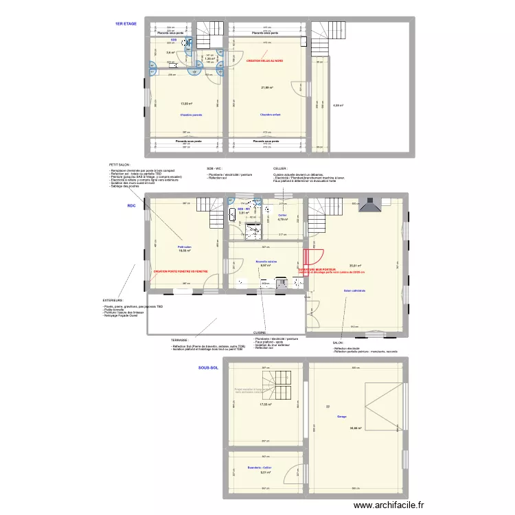
Liste des pièces
Aucune pièce n'a été créé sur ce plan.
Liste des objets
| Nom de l'objet | Nombre |
|---|---|
| Texte | 28 |
| Cheminée design | 1 |
| Escalier demi tournant | 1 |
| Escalier quart tournant | 4 |
| Évier 1 bac | 1 |
| Four | 1 |
| Hotte murale | 1 |
| Lave linge hublot | 1 |
| Lave main | 1 |
| Lave vaisselle 12 couverts | 1 |
| Meuble 1 lavabo integré | 1 |
| Receveur douche | 1 |
| Rectangle | 3 |
| Refrigerateur congelateur | 1 |
| WC petite taille | 1 |
| WC standard | 1 |
Lien vers ce plan
Lien pour partager le plan Chanoisy Projet Travaux
Image du plan
Copier et coller le code ci dessous
Partagez ce plan
Vous aimez ce plan ?
Cliquez sur J'aime et gagnez des fonctionnalités