chambre chatou
Plan de

Détails du plan
- Plan commencé le 02/11/2020 à 10:33 par IDcapsule
- Modifié le 02/11/2020 à 11:58 par IDcapsule
- Partage : Utilisation
Mots clés
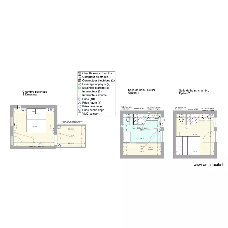
Liste des pièces
Aucune pièce n'a été créé sur ce plan.
Liste des objets
| Nom de l'objet | Nombre |
|---|---|
| Texte | 11 |
| Légende | 1 |
| Chauffe eau - Cumulus | 1 |
| Commode tiroirs 120 x 50 cm | 1 |
| Compteur électrique | 1 |
| Convecteur électrique | 2 |
| Eclairage applique | 2 |
| Eclairage plafond | 4 |
| Interrupteur | 2 |
| Interrupteur double | 1 |
| Lavabo | 2 |
| Lave linge hublot | 4 |
| Lit queen size | 2 |
| Prise | 10 |
| Prise haute | 4 |
| Prise lave linge | 1 |
| Prise sèche linge | 1 |
| Receveur douche extra plat | 2 |
| Sèche-serviettes électrique à inertie 1000 W | 1 |
| VMC caisson | 1 |
| WC standard | 2 |
Lien vers ce plan
Lien pour partager le plan chambre chatou
Image du plan
Copier et coller le code ci dessous
Partagez ce plan
Vous aimez ce plan ?
Cliquez sur J'aime et gagnez des fonctionnalités