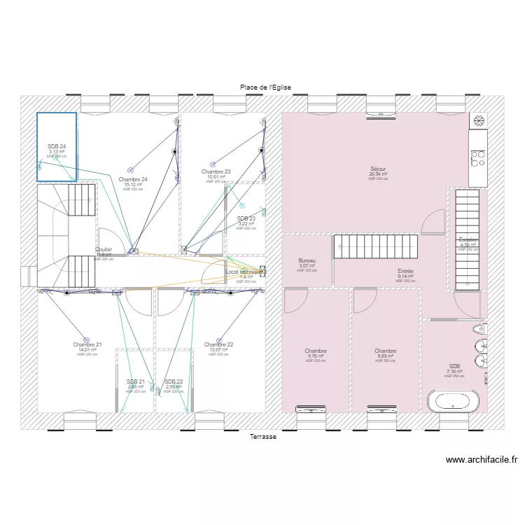
Etage 2 éclairage
Plan de

Détails du plan
- Plan commencé le 09/02/2019 à 16:08 par SergentDume
- Modifié le 11/02/2019 à 09:39 par SergentDume
- Partage : Utilisation
Mots clés
Liste des pièces
Aucune pièce n'a été créé sur ce plan.
Liste des objets
| Nom de l'objet | Nombre |
|---|---|
| Texte | 2 |
| Baignoire îlot ovale | 1 |
| Boite de dérivation | 4 |
| Climatiseur Split interieur | 3 |
| Convecteur électrique | 1 |
| Eclairage applique | 12 |
| Eclairage plafond | 9 |
| Escalier demi tournant | 1 |
| Escalier droit | 2 |
| Interrupteur | 17 |
| Interrupteur va et vient | 12 |
| Lavabo | 2 |
| Plan de travail | 1 |
| Plaque induction 4 foyers | 1 |
| Refrigerateur congelateur | 1 |
| Tableau électrique | 5 |
| WC suspendu | 1 |
Lien vers ce plan
Lien pour partager le plan Etage 2 éclairage
Image du plan
Copier et coller le code ci dessous
Partagez ce plan
Vous aimez ce plan ?
Cliquez sur J'aime et gagnez des fonctionnalités