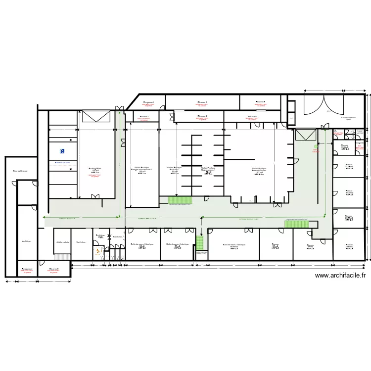
Greta rdc
Plan de

Détails du plan
- Plan commencé le 23/04/2021 à 08:36 par Marcus1961
- Modifié le 21/06/2021 à 23:04 par Marcus1961
- Partage : Utilisation
Mots clés
Liste des pièces
Aucune pièce n'a été créé sur ce plan.
Liste des objets
| Nom de l'objet | Nombre |
|---|---|
| Texte | 51 |
| Cercle | 1 |
| Escalier droit | 4 |
| giration fauteuil roulant | 1 |
| Meuble 1 lavabo integré | 2 |
| Meuble 2 lavabos | 2 |
| Parking PMR | 1 |
| Rectangle | 3 |
| Sèche-serviettes électrique à inertie 1000 W | 1 |
| Urinoir | 3 |
| WC standard | 7 |
Lien vers ce plan
Lien pour partager le plan Greta rdc
Image du plan
Copier et coller le code ci dessous
Partagez ce plan
Vous aimez ce plan ?
Cliquez sur J'aime et gagnez des fonctionnalités