Plan St Rambert
Plan de

Détails du plan
- Plan commencé le 22/08/2023 à 10:23 par jlelectricite
- Modifié le 24/08/2023 à 16:37 par jlelectricite
- Partage : Utilisation
Mots clés
Liste des pièces
Aucune pièce n'a été créé sur ce plan.
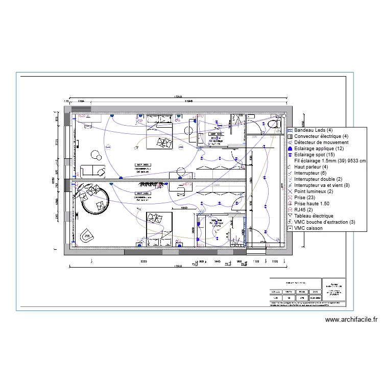
Liste des objets
| Nom de l'objet | Nombre |
|---|---|
| Légende | 1 |
| Bandeau Leds | 4 |
| Convecteur électrique | 4 |
| Détecteur de mouvement | 1 |
| Eclairage applique | 12 |
| Eclairage spot | 15 |
| Haut parleur | 4 |
| Interrupteur | 7 |
| Interrupteur double | 2 |
| Interrupteur va et vient | 8 |
| Point lumineux | 3 |
| Prise | 23 |
| RJ45 | 2 |
| Tableau électrique | 1 |
| VMC bouche d'extraction | 3 |
| VMC caisson | 1 |
Lien vers ce plan
Lien pour partager le plan Plan St Rambert
Image du plan
Copier et coller le code ci dessous
Partagez ce plan
Vous aimez ce plan ?
Cliquez sur J'aime et gagnez des fonctionnalités