EXTENSION OCT2020 DEF
Plan de

Détails du plan
- Plan commencé le 26/10/2020 à 15:32 par EGARREAU
- Modifié le 26/10/2020 à 15:32 par EGARREAU
- Partage : Utilisation
Mots clés
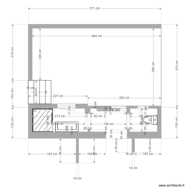
Liste des pièces
Aucune pièce n'a été créé sur ce plan.
Liste des objets
| Nom de l'objet | Nombre |
|---|---|
| Cabine douche | 1 |
| Escalier droit | 1 |
| Meuble 1 lavabo integré | 1 |
| Radiateur en fonte 2350 W ( 110 W / élément ) | 1 |
| WC petite taille | 1 |
Lien vers ce plan
Lien pour partager le plan EXTENSION OCT2020 DEF
Image du plan
Copier et coller le code ci dessous
Partagez ce plan
Vous aimez ce plan ?
Cliquez sur J'aime et gagnez des fonctionnalités