Ecole NDDN
Plan de

Détails du plan
- Plan commencé le 11/10/2024 à 09:44 par Maison Patay
- Modifié le 15/10/2024 à 17:31 par Maison Patay
- Partage : Utilisation
Mots clés
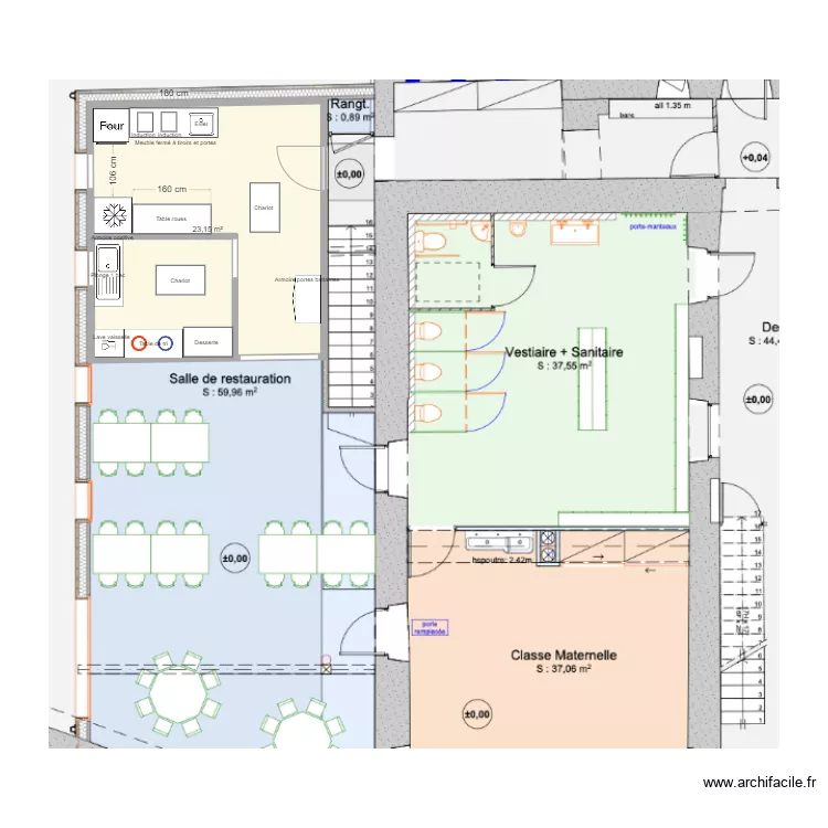
Liste des pièces
Aucune pièce n'a été créé sur ce plan.
Liste des objets
| Nom de l'objet | Nombre |
|---|---|
| Armoire portes battantes | 1 |
| Bar | 7 |
| Évier 1 bac avec meuble | 1 |
| Evier 1 vasque | 1 |
| Four | 1 |
| Lave vaisselle 12 couverts | 1 |
| Refrigerateur congelateur | 1 |
| Table de tri | 1 |
Lien vers ce plan
Lien pour partager le plan Ecole NDDN
Image du plan
Copier et coller le code ci dessous
Partagez ce plan
Vous aimez ce plan ?
Cliquez sur J'aime et gagnez des fonctionnalités