Ray 2 Ducos
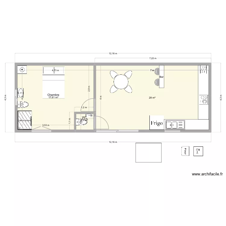
Plan de 3 pièces et 47 m²

Détails du plan
- Plan commencé le 28/02/2026 à 06:14 par Jmichel77
- Modifié le 28/02/2026 à 20:39 par Jmichel77
- Partage : Utilisation
Mots clés
Liste des pièces
- Chambre
- WC
Liste des objets
| Nom de l'objet | Nombre |
|---|---|
| Bar | 1 |
| Cabine douche | 1 |
| Évier 2 bacs avec meuble | 1 |
| Four | 1 |
| Four micro ondes | 1 |
| Ilot central | 1 |
| Lave linge hublot | 1 |
| Lave main | 1 |
| Lave vaisselle 12 couverts | 1 |
| Lit standard 140 x 200 cm | 1 |
| Meuble lavabo intégré | 1 |
| Plan de travail | 2 |
| Plaque induction 3 foyers avec meuble | 1 |
| Réfrigérateur | 1 |
| Table 4 pers. 90 x 90 cm | 1 |
| Tabouret de bar | 2 |
| WC standard | 2 |
Lien vers ce plan
Lien pour partager le plan Ray 2 Ducos
Image du plan
Copier et coller le code ci dessous
Partagez ce plan
Vous aimez ce plan ?
Cliquez sur J'aime et gagnez des fonctionnalités
Plans de 3 pièces et de 40 à 50 m2
Voir tout les plans de 3 pièces et de 40 à 50 m2
Plans de 3 pièces
Voir tout les plans de 3 pièces
Plans de 40 à 50 m2
Voir tout les plans de 40 à 50 m2