EGCS CHANTIER BOURGOIN / POLICE
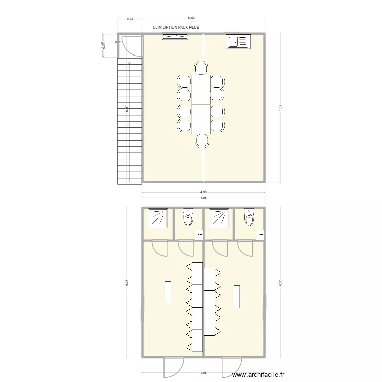
Plan de 8 et 57 m²

Détails du plan
- Plan commencé le 12/02/2026 à 15:10 par aca69780
- Modifié le 12/02/2026 à 15:10 par aca69780
- Partage : Utilisation
Mots clés
Liste des pièces
Liste des objets
| Nom de l'objet | Nombre |
|---|---|
| Texte | 1 |
| Armoire portes pliantes | 7 |
| Chaise | 10 |
| Climatiseur Split interieur | 1 |
| Escalier droit | 1 |
| Etagère redimenssionnable | 2 |
| Évier 1 bac avec meuble | 1 |
| Meuble 1 lavabo integré | 2 |
| Receveur douche | 2 |
| Table de bureau | 2 |
| WC standard | 2 |
Lien vers ce plan
Lien pour partager le plan EGCS CHANTIER BOURGOIN / POLICE
Image du plan
Copier et coller le code ci dessous
Partagez ce plan
Vous aimez ce plan ?
Cliquez sur J'aime et gagnez des fonctionnalités
Plans de 8 pièces et de 50 à 60 m2
Voir tout les plans de 8 pièces et de 50 à 60 m2
Plans de 8 pièces
Voir tout les plans de 8 pièces
Plans de 50 à 60 m2
Voir tout les plans de 50 à 60 m2