Buchot Julien et Anne Aménagement V1 1ch 1grenier
Plan de

Description
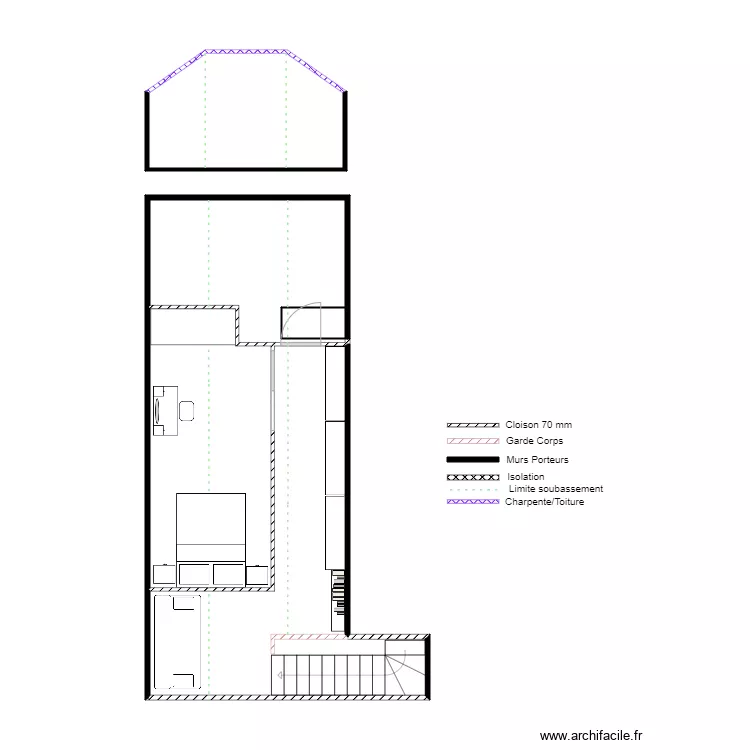
Combles
Détails du plan
- Plan commencé le 07/04/2021 à 16:32 par anthony.mace.lamaisondestravaux.com
- Modifié le 07/04/2021 à 16:32 par anthony.mace.lamaisondestravaux.com
- Partage : Utilisation
Mots clés
Liste des pièces
Aucune pièce n'a été créé sur ce plan.
Liste des objets
| Nom de l'objet | Nombre |
|---|---|
| Texte | 6 |
| Banquette clic-clac 3 places | 1 |
| Bibliothèque | 1 |
| Coiffeuse 100 X 50 cm | 1 |
| Commode tiroirs 120 x 50 cm | 3 |
| Escalier quart tournant | 1 |
| Lit double standard | 1 |
| Rectangle | 1 |
| Table de chevet | 2 |
Lien vers ce plan
Lien pour partager le plan Buchot Julien et Anne Aménagement V1 1ch 1grenier
Image du plan
Copier et coller le code ci dessous
Partagez ce plan
Vous aimez ce plan ?
Cliquez sur J'aime et gagnez des fonctionnalités