Dépot Damage Hauts Sarts
Plan de

Description
Projet dépot
Détails du plan
- Plan commencé le 15/03/2023 à 14:57 par damagecontrol
- Modifié le 16/03/2023 à 11:05 par damagecontrol
- Partage : Utilisation
Mots clés
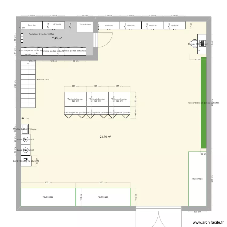
Liste des pièces
Aucune pièce n'a été créé sur ce plan.
Liste des objets
| Nom de l'objet | Nombre |
|---|---|
| Armoire | 6 |
| Armoire portes battantes | 3 |
| Armoire portes pliantes | 3 |
| Bureau 100 X 50 cm | 1 |
| Escalier droit | 1 |
| Lave linge hublot | 2 |
| Lave vaisselle 12 couverts | 1 |
| Meuble 1 lavabo integré | 1 |
| Radiateur à inertie 1000W | 1 |
| rayonnage | 3 |
| Table basse | 1 |
| Table de bureau | 3 |
Lien vers ce plan
Lien pour partager le plan Dépot Damage Hauts Sarts
Image du plan
Copier et coller le code ci dessous
Partagez ce plan
Vous aimez ce plan ?
Cliquez sur J'aime et gagnez des fonctionnalités