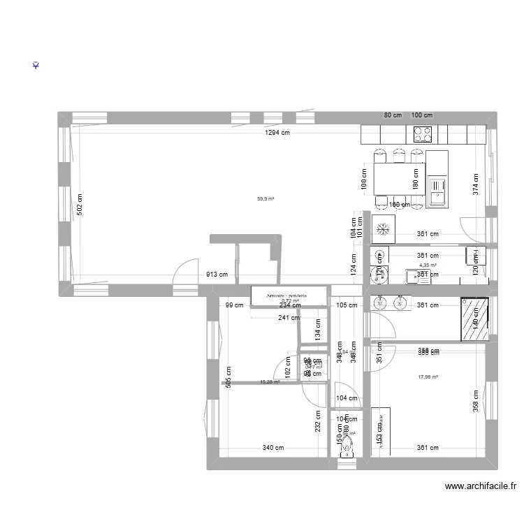
cuisine de remi et véro
Plan de

Description
rénover ma cuisine
Détails du plan
- Plan commencé le 25/11/2024 à 14:38 par kevine dit keke
- Modifié le 26/11/2024 à 21:13 par kevine dit keke
- Partage : Utilisation
Mots clés
Liste des pièces
Aucune pièce n'a été créé sur ce plan.
Liste des objets
| Nom de l'objet | Nombre |
|---|---|
| Armoire - penderie 150 cm | 1 |
| Armoire - penderie 200 cm | 1 |
| Bar | 8 |
| Cabine douche | 1 |
| Chaise haute bar | 6 |
| Etagère redimenssionnable | 2 |
| Évier 1 bac | 1 |
| Évier 1 bac avec meuble | 1 |
| Four | 1 |
| Lave linge hublot | 1 |
| Meuble 2 vasques | 1 |
| Plaque induction 4 foyers | 1 |
| Prise 20 A | 1 |
| Refrigerateur americain | 1 |
| Sèche linge | 1 |
| WC standard | 1 |
Lien vers ce plan
Lien pour partager le plan cuisine de remi et véro
Image du plan
Copier et coller le code ci dessous
Partagez ce plan
Vous aimez ce plan ?
Cliquez sur J'aime et gagnez des fonctionnalités