rénovation d'un salon de coiffure
Plan de

Détails du plan
- Plan commencé le 28/07/2024 à 13:33 par ibiscolors
- Modifié le 01/08/2024 à 13:29 par ibiscolors
- Partage : Utilisation
Mots clés
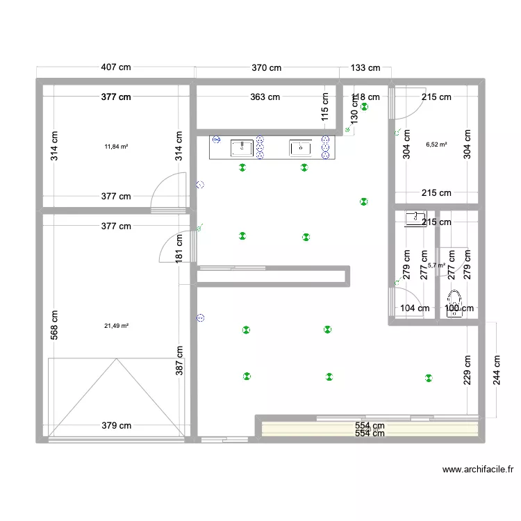
Liste des pièces
Aucune pièce n'a été créé sur ce plan.
Liste des objets
| Nom de l'objet | Nombre |
|---|---|
| Eclairage spot | 11 |
| Interrupteur | 2 |
| Interrupteur avec voyant | 2 |
| Meuble 1 lavabo integré | 3 |
| Plan de travail | 1 |
| Prise | 6 |
| Prise téléphone | 1 |
| Prise TV, SAT, FM | 2 |
| WC standard | 1 |
Lien vers ce plan
Lien pour partager le plan rénovation d'un salon de coiffure
Image du plan
Copier et coller le code ci dessous
Partagez ce plan
Vous aimez ce plan ?
Cliquez sur J'aime et gagnez des fonctionnalités