labo
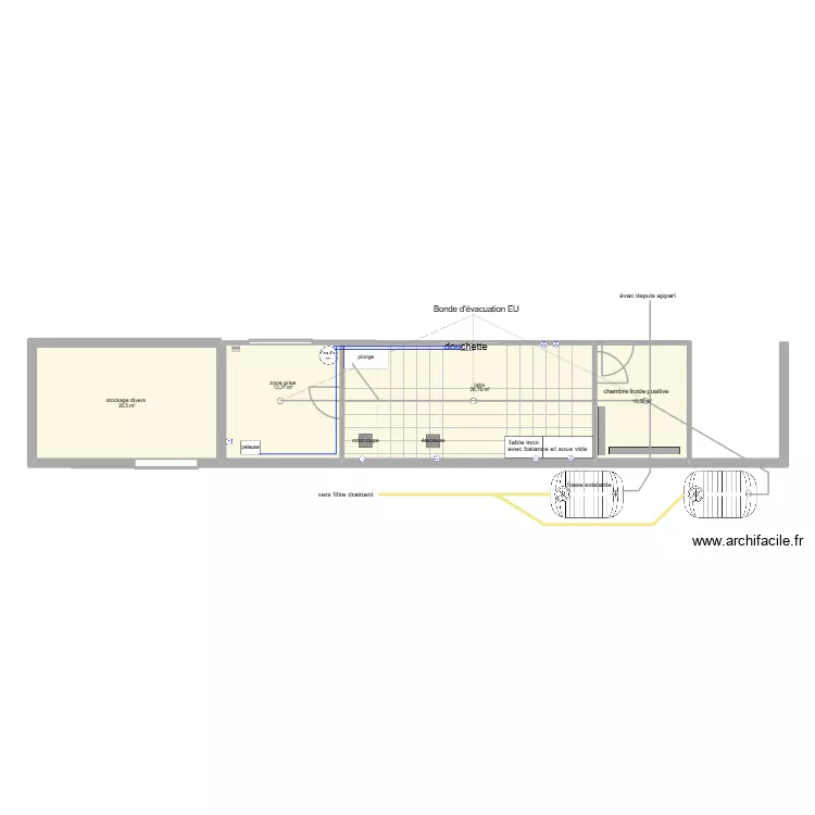
Plan de 4 et 73 m²

Détails du plan
- Plan commencé le 28/01/2026 à 17:53 par BOUGET LAVIGNE Thomas
- Modifié le 30/01/2026 à 11:09 par BOUGET LAVIGNE Thomas
- Partage : Utilisation
Mots clés
Liste des pièces
- zone grise
- labo
- stockage divers
Liste des objets
| Nom de l'objet | Nombre |
|---|---|
| Texte | 6 |
| Cercle | 3 |
| Chauffe eau | 1 |
| Etagère redimenssionnable | 2 |
| Fosse septique env. 3m3 | 2 |
| peleuse | 1 |
| Prise | 6 |
| Prise haute | 1 |
| Rectangle | 1 |
| Tableau 1x13 | 1 |
Lien vers ce plan
Lien pour partager le plan labo
Image du plan
Copier et coller le code ci dessous
Partagez ce plan
Vous aimez ce plan ?
Cliquez sur J'aime et gagnez des fonctionnalités
Plans de 4 pièces et de 60 à 80 m2
Voir tout les plans de 4 pièces et de 60 à 80 m2
Plans de 4 pièces
Voir tout les plans de 4 pièces
Plans de 60 à 80 m2
Voir tout les plans de 60 à 80 m2