vougy nicolas restaurant
Plan de

Description
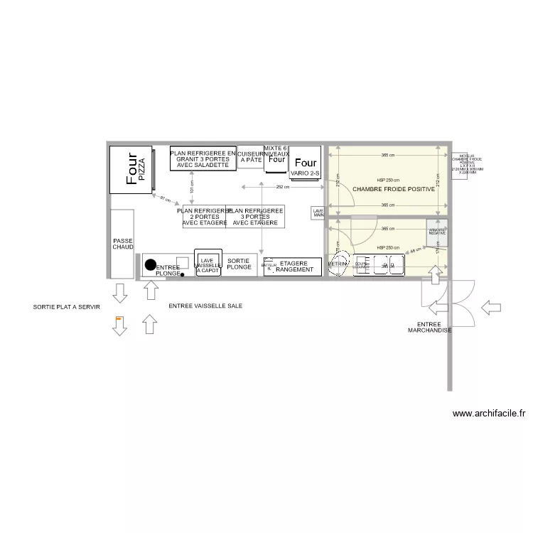
equipement restaurant
Détails du plan
- Plan commencé le 23/06/2021 à 17:02 par FRED74950
- Modifié le 24/06/2021 à 17:10 par FRED74950
- Partage : Utilisation
Mots clés
Liste des pièces
Aucune pièce n'a été créé sur ce plan.
Liste des objets
| Nom de l'objet | Nombre |
|---|---|
| Texte | 22 |
| Cercle | 2 |
| Chaise | 1 |
| Chaise | 1 |
| Chaise haute bar | 1 |
| Etagère redimenssionnable | 2 |
| Évier 2 bacs | 1 |
| Flêche | 7 |
| Four | 3 |
| Meuble cuisine haut 40 cm | 1 |
| Rectangle | 10 |
Lien vers ce plan
Lien pour partager le plan vougy nicolas restaurant
Image du plan
Copier et coller le code ci dessous
Partagez ce plan
Vous aimez ce plan ?
Cliquez sur J'aime et gagnez des fonctionnalités