cuisine LV 45 charlier
Plan de

Détails du plan
- Plan commencé le 28/11/2021 à 10:42 par pascal et Mathias
- Modifié le 28/11/2021 à 10:42 par pascal et Mathias
- Partage : Utilisation
Mots clés
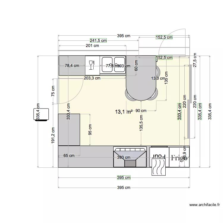
Liste des pièces
Aucune pièce n'a été créé sur ce plan.
Liste des objets
| Nom de l'objet | Nombre |
|---|---|
| Bar | 2 |
| Évier 2 bacs | 1 |
| Four | 1 |
| Four micro ondes | 1 |
| Hotte murale | 1 |
| Lave vaisselle 12 couverts | 1 |
| Piano de cuisson 5 foyers | 1 |
| Plan de travail | 1 |
| Plan de travail bout arrondi | 1 |
| Poubelle | 1 |
| Radiateur à inertie 1000W | 1 |
| Réfrigérateur | 1 |
| Tabouret de bar | 3 |
Lien vers ce plan
Lien pour partager le plan cuisine LV 45 charlier
Image du plan
Copier et coller le code ci dessous
Partagez ce plan
Vous aimez ce plan ?
Cliquez sur J'aime et gagnez des fonctionnalités