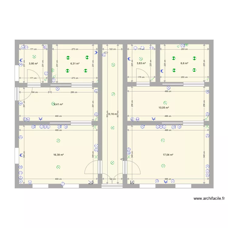
Implantation réseau électricité rdc
Plan de

Détails du plan
- Plan commencé le 24/10/2021 à 11:43 par Labuse31
- Modifié le 24/10/2021 à 11:52 par Labuse31
- Partage : Utilisation
Mots clés
Liste des pièces
Aucune pièce n'a été créé sur ce plan.
Liste des objets
| Nom de l'objet | Nombre |
|---|---|
| Détecteur de mouvement | 2 |
| Eclairage applique | 2 |
| Eclairage plafond | 12 |
| Eclairage spot | 8 |
| Interrupteur | 7 |
| Interrupteur double va et vient | 4 |
| Interrupteur va et vient | 2 |
| Prise | 17 |
| Prise | 8 |
| Prise Cumulus | 2 |
| Prise four | 2 |
| Prise haute | 5 |
| Prise lave linge | 2 |
| Prise lave vaisselle | 2 |
| Prise plaque de cuisson | 2 |
| Prise réfrigérateur | 2 |
| Prise réseau RJ45 | 4 |
| Prise sèche linge | 2 |
| Prise téléphone | 2 |
| Prise TV | 2 |
| Prise volet roulant | 7 |
| Tableau électrique | 2 |
Lien vers ce plan
Lien pour partager le plan Implantation réseau électricité rdc
Image du plan
Copier et coller le code ci dessous
Partagez ce plan
Vous aimez ce plan ?
Cliquez sur J'aime et gagnez des fonctionnalités