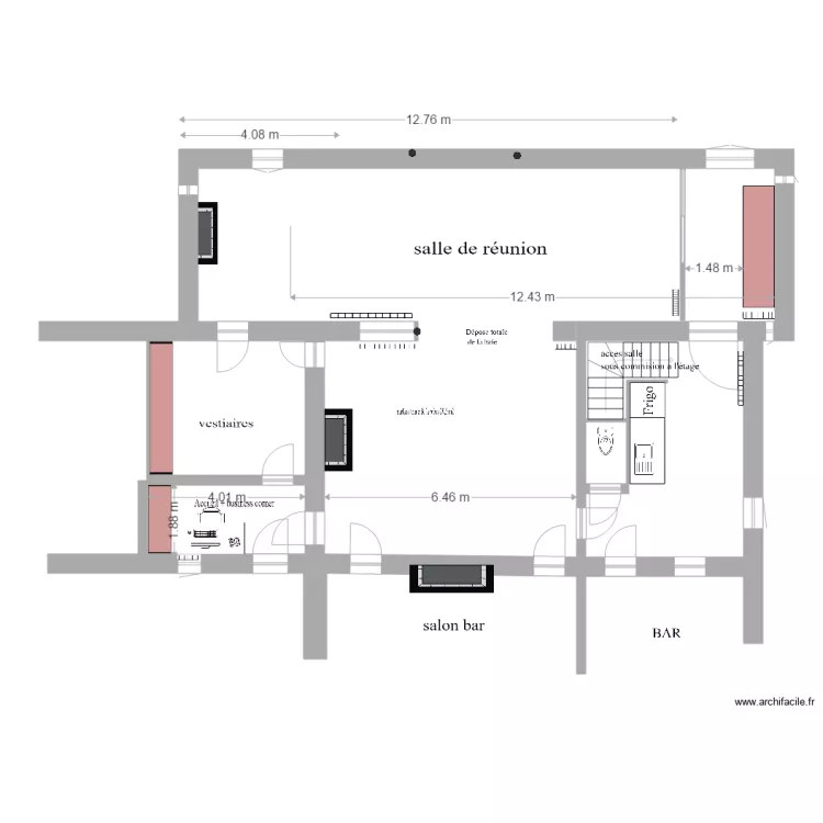
espace animation identifiéplan apres 1ere reunion du 12 decemre avec jacques
Plan de

Détails du plan
- Plan commencé le 15/12/2019 à 20:25 par perenes
- Modifié le 08/01/2020 à 14:00 par perenes
- Partage : Utilisation
Mots clés
Liste des pièces
Aucune pièce n'a été créé sur ce plan.
Liste des objets
| Nom de l'objet | Nombre |
|---|---|
| Bureau rectangulaire 140 X 80 cm | 1 |
| Cheminée | 3 |
| Escalier quart tournant | 1 |
| Évier 1 bac | 1 |
| Radiateur à inertie 2000W | 7 |
| Réfrigérateur | 1 |
| WC standard | 1 |
Lien vers ce plan
Lien pour partager le plan espace animation identifiéplan apres 1ere reunion du 12 decemre avec jacques
Image du plan
Copier et coller le code ci dessous
Partagez ce plan
Vous aimez ce plan ?
Cliquez sur J'aime et gagnez des fonctionnalités