option1
Plan de

Détails du plan
- Plan commencé le 25/01/2018 à 10:10 par oscar60
- Modifié le 07/02/2018 à 19:54 par oscar60
- Partage : Utilisation
Mots clés
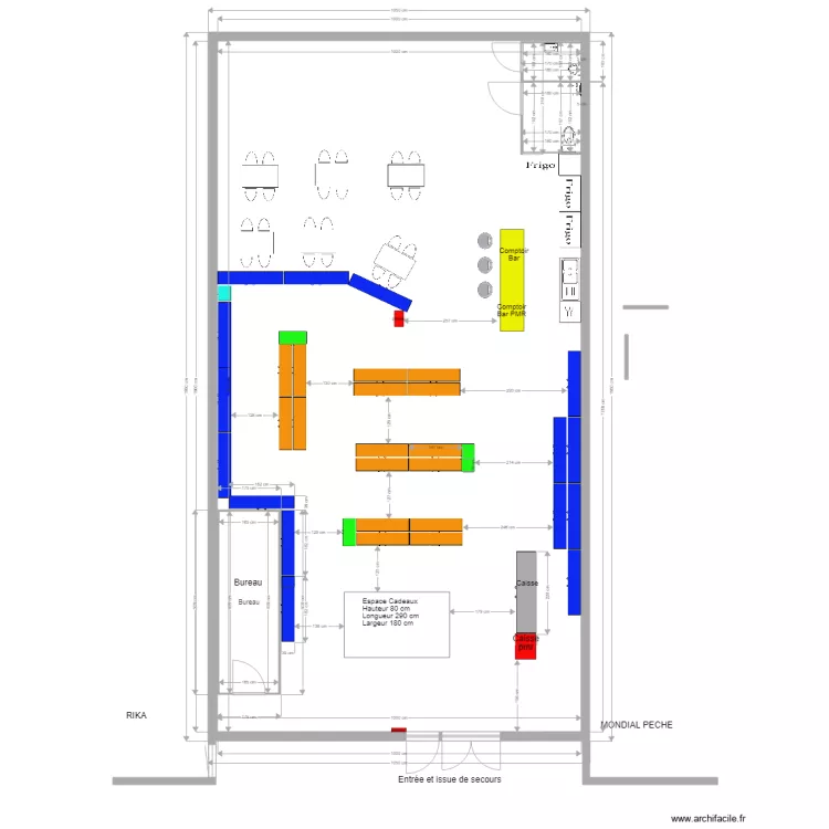
Liste des pièces
Aucune pièce n'a été créé sur ce plan.
Liste des objets
| Nom de l'objet | Nombre |
|---|---|
| Texte | 9 |
| Armoire | 36 |
| Bar | 2 |
| Évier 2 bacs avec meuble | 1 |
| Ilot central | 1 |
| Lave main | 2 |
| Lave vaisselle 12 couverts | 1 |
| Rectangle | 2 |
| Réfrigérateur | 3 |
| Table 4 - 6 pers. 80 x 125 cm | 6 |
| Tabouret de bar | 3 |
| Urinoir | 1 |
| WC standard | 1 |
Lien vers ce plan
Lien pour partager le plan option1
Image du plan
Copier et coller le code ci dessous
Partagez ce plan
Vous aimez ce plan ?
Cliquez sur J'aime et gagnez des fonctionnalités