Place Baille élec
Plan de

Détails du plan
- Plan commencé le 17/07/2020 à 18:56 par Ormeaux
- Modifié le 01/11/2020 à 16:54 par Ormeaux
- Partage : Utilisation
Mots clés
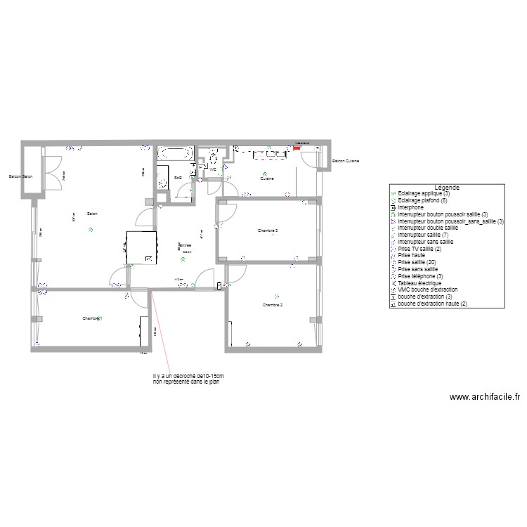
Liste des pièces
Aucune pièce n'a été créé sur ce plan.
Liste des objets
| Nom de l'objet | Nombre |
|---|---|
| Texte | 1 |
| Légende | 1 |
| Armoire portes battantes | 5 |
| Baignoire rectangulaire (encastrable) | 1 |
| Eclairage plafond | 6 |
| Interphone | 1 |
| Interrupteur | 7 |
| Interrupteur bouton poussoir | 3 |
| Interrupteur double | 1 |
| Lavabo | 1 |
| Meuble tiroir | 1 |
| Prise | 20 |
| Prise haute | 1 |
| Prise téléphone | 3 |
| Prise TV | 2 |
| Rectangle | 9 |
| Tableau électrique | 1 |
| VMC bouche d'extraction | 1 |
| WC standard | 1 |
Lien vers ce plan
Lien pour partager le plan Place Baille élec
Image du plan
Copier et coller le code ci dessous
Partagez ce plan
Vous aimez ce plan ?
Cliquez sur J'aime et gagnez des fonctionnalités