plan cuisine couilleau laurent
Plan de

Détails du plan
- Plan commencé le 06/03/2020 à 08:57 par geogilles
- Modifié le 29/04/2020 à 09:00 par geogilles
- Partage : Utilisation
Mots clés
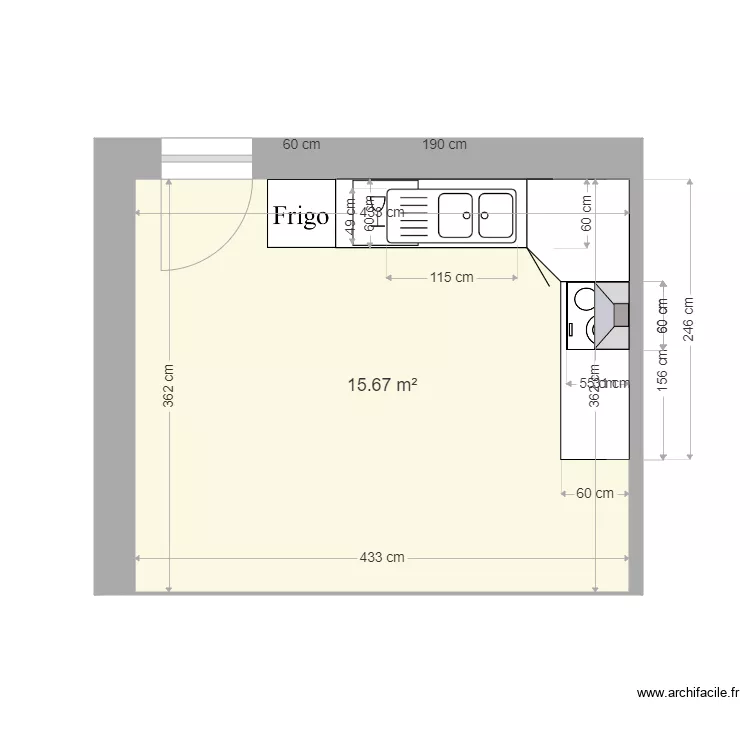
Liste des pièces
Aucune pièce n'a été créé sur ce plan.
Liste des objets
| Nom de l'objet | Nombre |
|---|---|
| Évier 2 bacs | 1 |
| Hotte murale | 1 |
| Lave vaisselle 12 couverts | 1 |
| Meuble cuisine coin bas | 1 |
| Plan de travail | 2 |
| Plaque induction 3 foyers | 1 |
| Réfrigérateur | 1 |
Lien vers ce plan
Lien pour partager le plan plan cuisine couilleau laurent
Image du plan
Copier et coller le code ci dessous
Partagez ce plan
Vous aimez ce plan ?
Cliquez sur J'aime et gagnez des fonctionnalités