Bistrot Maze
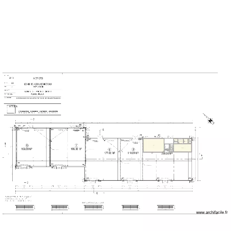
Plan de 9 et 248 m²

Détails du plan
- Plan commencé le 25/03/2026 à 18:04 par Bistrot1813
- Modifié le 26/03/2026 à 18:39 par Bistrot1813
- Partage : Utilisation
Mots clés
Liste des pièces
- LAVERIE ET ACCES ETAGE
- WC SALARIES
- VESTIAIRES
- DOUCHE
- LOCAL MENAGE
- SALLE PRIVATIVE
- WC CLIENT
- Cuisine
Liste des objets
| Nom de l'objet | Nombre |
|---|---|
| Cabine douche | 1 |
| Escalier droit | 1 |
| Lavabo | 4 |
| Lave linge hublot | 1 |
| Rectangle | 1 |
| WC suspendu | 4 |
Lien vers ce plan
Lien pour partager le plan Bistrot Maze
Image du plan
Copier et coller le code ci dessous
Partagez ce plan
Vous aimez ce plan ?
Cliquez sur J'aime et gagnez des fonctionnalités
Plans de 9 pièces et de 240 à 260 m2
Voir tout les plans de 9 pièces et de 240 à 260 m2
Plans de 9 pièces
Voir tout les plans de 9 pièces
Plans de 240 à 260 m2
Voir tout les plans de 240 à 260 m2