PROJET2 BP SG v3
Plan de

Détails du plan
- Plan commencé le 08/06/2020 à 14:50 par SB Arkadia
- Modifié le 08/06/2020 à 15:19 par SB Arkadia
- Partage : Utilisation
Mots clés
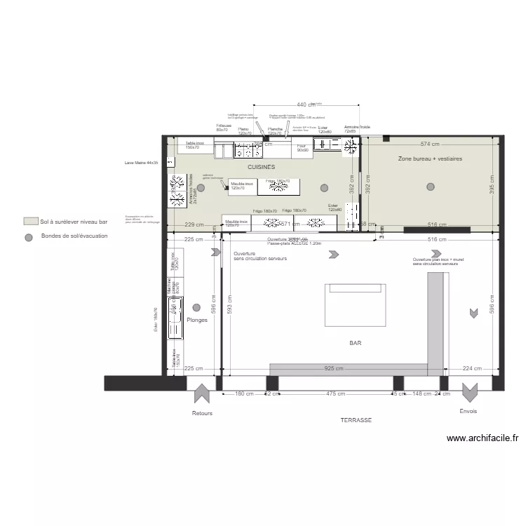
Liste des pièces
Aucune pièce n'a été créé sur ce plan.
Liste des objets
| Nom de l'objet | Nombre |
|---|---|
| Texte | 37 |
| Cercle | 5 |
| Chevron | 6 |
| Évier 2 bacs avec meuble | 3 |
| Flêche | 3 |
| Meuble 1 lavabo integré | 1 |
| Piano de cuisson 6 foyers | 1 |
| Rectangle | 27 |
| Réfrigérateur | 3 |
| Refrigerateur americain | 3 |
Lien vers ce plan
Lien pour partager le plan PROJET2 BP SG v3
Image du plan
Copier et coller le code ci dessous
Partagez ce plan
Vous aimez ce plan ?
Cliquez sur J'aime et gagnez des fonctionnalités