gailleres rénovation
Plan de 0 pièce et 0 m2.

Détails du plan
- Plan commencé le 18/05/2023 à 15:55 par sebju77
- Modifié le 04/05/2024 à 16:06 par sebju77
- Partage : Utilisation
Mots clés
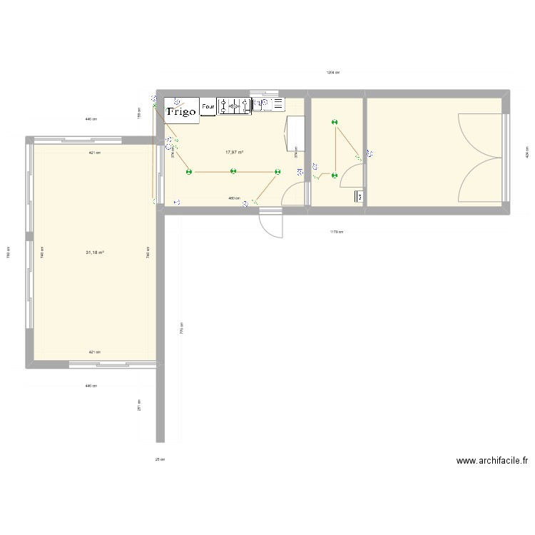
Liste des pièces
Aucune pièce n'a été créé sur ce plan.
Liste des objets
| Nom de l'objet | Nombre |
|---|---|
| Compteur électrique | 1 |
| Eclairage applique | 2 |
| Eclairage spot | 5 |
| Évier 2 bacs | 1 |
| Four | 1 |
| Interrupteur | 1 |
| Interrupteur avec voyant | 1 |
| Interrupteur va et vient | 4 |
| Meuble cuisine 3 tiroirs | 1 |
| Piano de cuisson 5 foyers | 1 |
| Prise | 3 |
| Prise four | 2 |
| Prise haute | 4 |
| Prise Store | 2 |
| Réfrigérateur | 1 |
Lien vers ce plan
Lien pour partager le plan gailleres rénovation
Image du plan
Copier et coller le code ci dessous
Partagez ce plan
Vous aimez ce plan ?
Cliquez sur J'aime et gagnez des fonctionnalités