chambres 1 et 2 v2a
Plan de

Détails du plan
- Plan commencé le 27/03/2020 à 23:38 par alma36
- Modifié le 29/03/2020 à 17:34 par alma36
- Partage : Utilisation
Mots clés
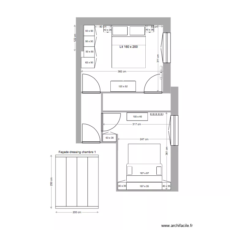
Liste des pièces
Aucune pièce n'a été créé sur ce plan.
Liste des objets
| Nom de l'objet | Nombre |
|---|---|
| Texte | 37 |
| Banquette clic-clac 3 places | 1 |
| Commode tiroirs 120 x 50 cm | 1 |
| Etagère redimenssionnable | 1 |
| Lit queen size | 1 |
| Meuble cuisine 1 porte | 6 |
| Meuble cuisine 2 portes | 1 |
| Radiateur à inertie 1500W | 2 |
| Rectangle | 8 |
| Table de chevet | 2 |
Lien vers ce plan
Lien pour partager le plan chambres 1 et 2 v2a
Image du plan
Copier et coller le code ci dessous
Partagez ce plan
Vous aimez ce plan ?
Cliquez sur J'aime et gagnez des fonctionnalités