BI 4602 rdc côté
Plan de

Détails du plan
- Plan commencé le 30/01/2020 à 08:41 par Abcimmodiag44
- Modifié le 30/01/2020 à 09:24 par Abcimmodiag44
- Partage : Utilisation
Mots clés
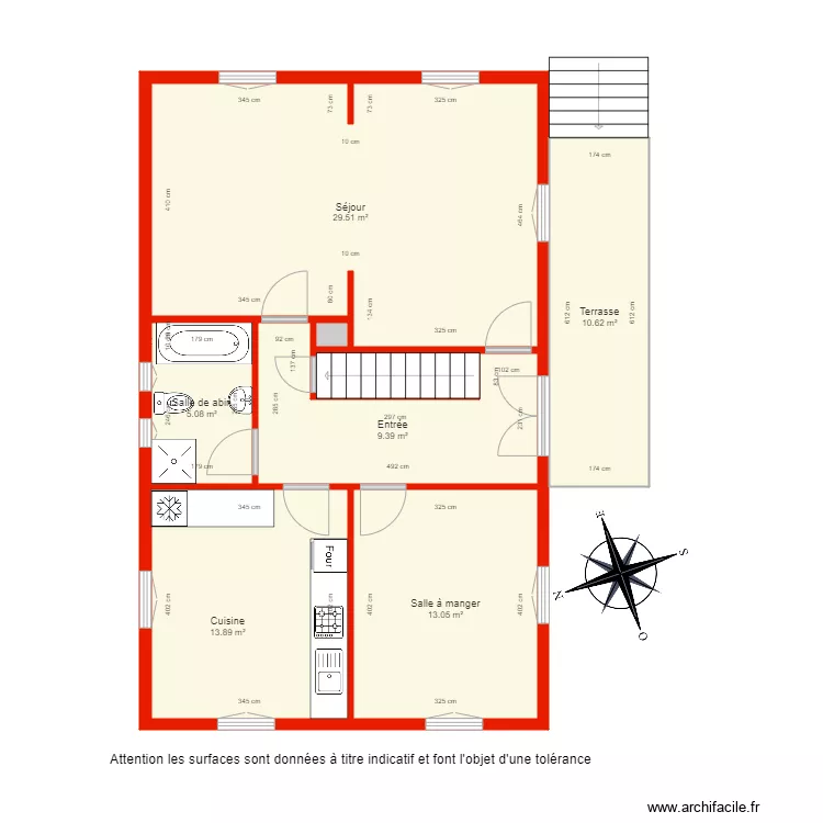
Liste des pièces
Aucune pièce n'a été créé sur ce plan.
Liste des objets
| Nom de l'objet | Nombre |
|---|---|
| Texte | 1 |
| Baignoire rectangulaire (encastrable) | 1 |
| Boussole 1 | 1 |
| Escalier droit | 2 |
| Évier 1 bac | 1 |
| Four | 1 |
| Lavabo | 1 |
| Plan de travail | 2 |
| Plaque gaz | 1 |
| Receveur douche extra plat | 1 |
| Réfrigérateur | 1 |
| WC standard | 1 |
Lien vers ce plan
Lien pour partager le plan BI 4602 rdc côté
Image du plan
Copier et coller le code ci dessous
Partagez ce plan
Vous aimez ce plan ?
Cliquez sur J'aime et gagnez des fonctionnalités