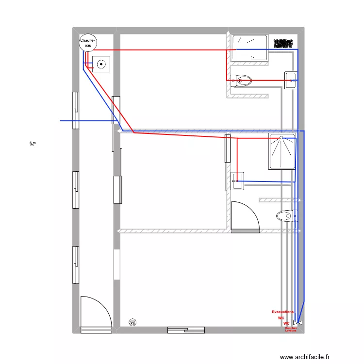
RDC La Llagonne.Mathias.plomberie
Plan de

Détails du plan
- Plan commencé le 08/03/2025 à 20:19 par Matchris6611
- Modifié le 17/03/2025 à 00:59 par Matchris6611
- Partage : Utilisation
Mots clés
Liste des pièces
Aucune pièce n'a été créé sur ce plan.
Liste des objets
| Nom de l'objet | Nombre |
|---|---|
| Texte | 4 |
| Chauffe eau | 1 |
| Compteur d'eau | 1 |
| Lave linge hublot | 1 |
| Meuble 1 lavabo integré | 2 |
| Receveur douche | 2 |
| Vanne | 1 |
| WC standard | 2 |
Lien vers ce plan
Lien pour partager le plan RDC La Llagonne.Mathias.plomberie
Image du plan
Copier et coller le code ci dessous
Partagez ce plan
Vous aimez ce plan ?
Cliquez sur J'aime et gagnez des fonctionnalités