etage1 - projet2-elec
Plan de

Description
projet de plan
Détails du plan
- Plan commencé le 09/06/2025 à 09:26 par nalbui
- Modifié le 09/06/2025 à 10:17 par nalbui
- Partage : Utilisation
Mots clés
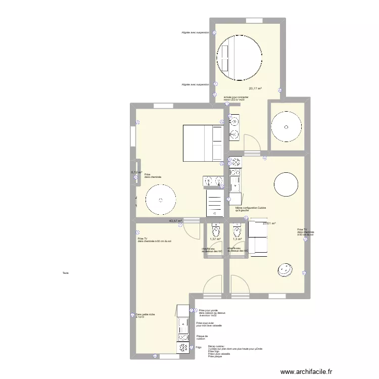
Liste des pièces
Aucune pièce n'a été créé sur ce plan.
Liste des objets
| Nom de l'objet | Nombre |
|---|---|
| Texte | 16 |
| baignoire balneo | 2 |
| Canapé 2 places | 1 |
| Fauteuil crapaud | 1 |
| Kitchenette électrique | 2 |
| Lit King Size | 1 |
| Meuble 2 vasques | 2 |
| Meuble cuisine 1 porte | 2 |
| Prise | 25 |
| Receveur douche | 1 |
| Refrigerateur congelateur | 2 |
| Sèche-serviettes électrique à inertie 1000 W | 1 |
| Table basse | 1 |
| WC standard | 2 |
Lien vers ce plan
Lien pour partager le plan etage1 - projet2-elec
Image du plan
Copier et coller le code ci dessous
Partagez ce plan
Vous aimez ce plan ?
Cliquez sur J'aime et gagnez des fonctionnalités