Projet 3 Molenbeek REZ a 130cm 5.11.24
Plan de

Description
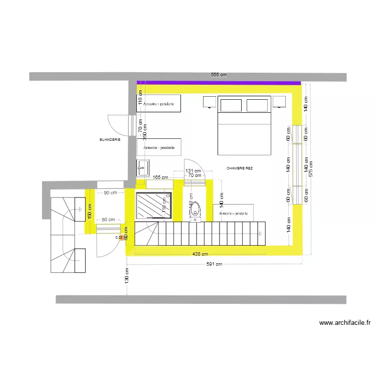
Molenbeek vue plan rez chambre
Détails du plan
- Plan commencé le 05/11/2024 à 14:26 par wood wall concept
- Modifié le 05/11/2024 à 14:26 par wood wall concept
- Partage : Utilisation
Mots clés
Liste des pièces
Aucune pièce n'a été créé sur ce plan.
Liste des objets
| Nom de l'objet | Nombre |
|---|---|
| Texte | 2 |
| Armoire - penderie 150 cm | 3 |
| Cabine douche | 1 |
| Escalier demi tournant | 1 |
| Escalier quart tournant | 1 |
| Lit King Size | 1 |
| Meuble 1 lavabo integré | 1 |
| Table de chevet | 2 |
| WC standard | 1 |
Lien vers ce plan
Lien pour partager le plan Projet 3 Molenbeek REZ a 130cm 5.11.24
Image du plan
Copier et coller le code ci dessous
Partagez ce plan
Vous aimez ce plan ?
Cliquez sur J'aime et gagnez des fonctionnalités